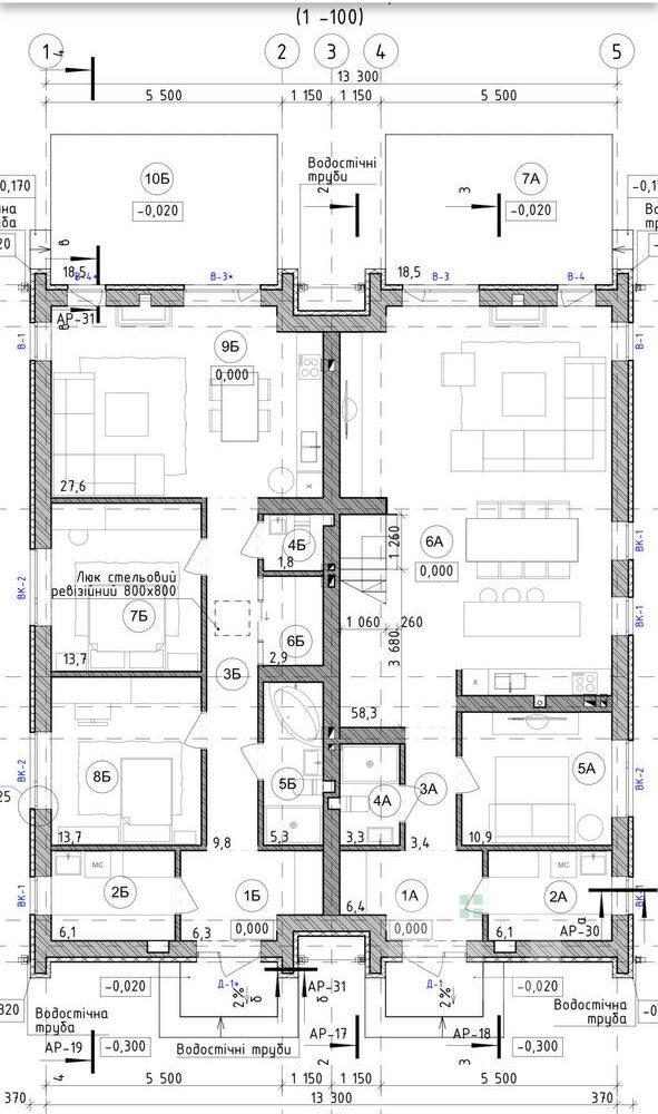
Загальна площа: 87 м2
Житлова площа: 27.4 м2
Площа кухні: 27.6 м2
Площа ділянки: 2.7 сотки
Сучасний та якісний дуплекс у топовій локації в Бучі, навколо елітний приватний сектор. Котеджне містечко знаходиться безпосередньо біля бучанського лісництва.
Перед входом в будинок знаходиться паркувальне місце на 2 автомобілі, з кухні-студії вихід на просторий задній двір з вилитою, бетонною, терасою.
Загальна площа будинку 87.2 м2 + 18.5 м2 тераса, розташовується на ділянці 2.7 соток. Дуже вдале планування: передпокій з місцем під шафу, технічна кімната, 2 санвузли, 2 спальні кімнати по 13.7 м2, гардероб та простора кухня-вітальня 27.6 м2 з другим світлом. З вітальні вихід на бетоновану терасу 18.5 м2 та задній двір з соснами.
Будинок збудований з червоної цегли (керамоблок 380), утеплений ущільненим пінополістеролом 100 мм, дах та частково фасад фальц, утеплений 200 мм мінвати, що робить будинок енегоефективним та зменшує витрати на його обслуговування. Має комбінований фасад – фальц та дерев’яний планкен. Вікна енергозберігаючі з напиленням від заводу-виробника шляхом напилення у вакуумі на поверхню скла тонкого шару металу.
Опалення газ, електрика 7 кВт, 3 фази, вхідна вода свердловина, каналізація септик з переливом. Комунальні платежі мінімальні.
Розташування дуже вдале: вікові сосни, лісова зона. На машині до Києва 15 хвилин, до центру Бучі та до всієї інфраструктури асфальтований під’їзд займає 5 хвилин.
Готовність вересень 2025.
Можливе розтермінування на індивілуальних умовах.


































































