Загальна площа: 100 м2
Житлова площа: 46 м2
Площа кухні: 34 м2
Площа ділянки: 3.2 сотки
Кутовий таунхаус 100 м2 на ділянці 3.2 сотки у закритому комплексі — комфорт, природа і стиль життя!
O.Krasa — це сучасне “місто в місті” під Києвом із власною інфраструктурою: школа, дитсадок, медцентр, магазини, кафе, спортзал, стадіон, зони відпочинку, «Нова пошта», салони краси, готель, центр дозвілля.
Безпека та автономність: бомбосховище, генератори, власна сервісна компанія Svitlo Home Service, центральна каналізація та водопостачання.
Сучасний двоповерховий кутовий таунхаус із великою ділянкою 3.2 сотки, облаштованою терасою 13м2 та можливістю облаштувати гарну зону відпочинку з барбекю.
Будинок зведено з керамоблоку, утеплено мінеральною ватою. Зроблено сучасний фасад з облицювальної плитки, термодерева та декоративної штукатурки.
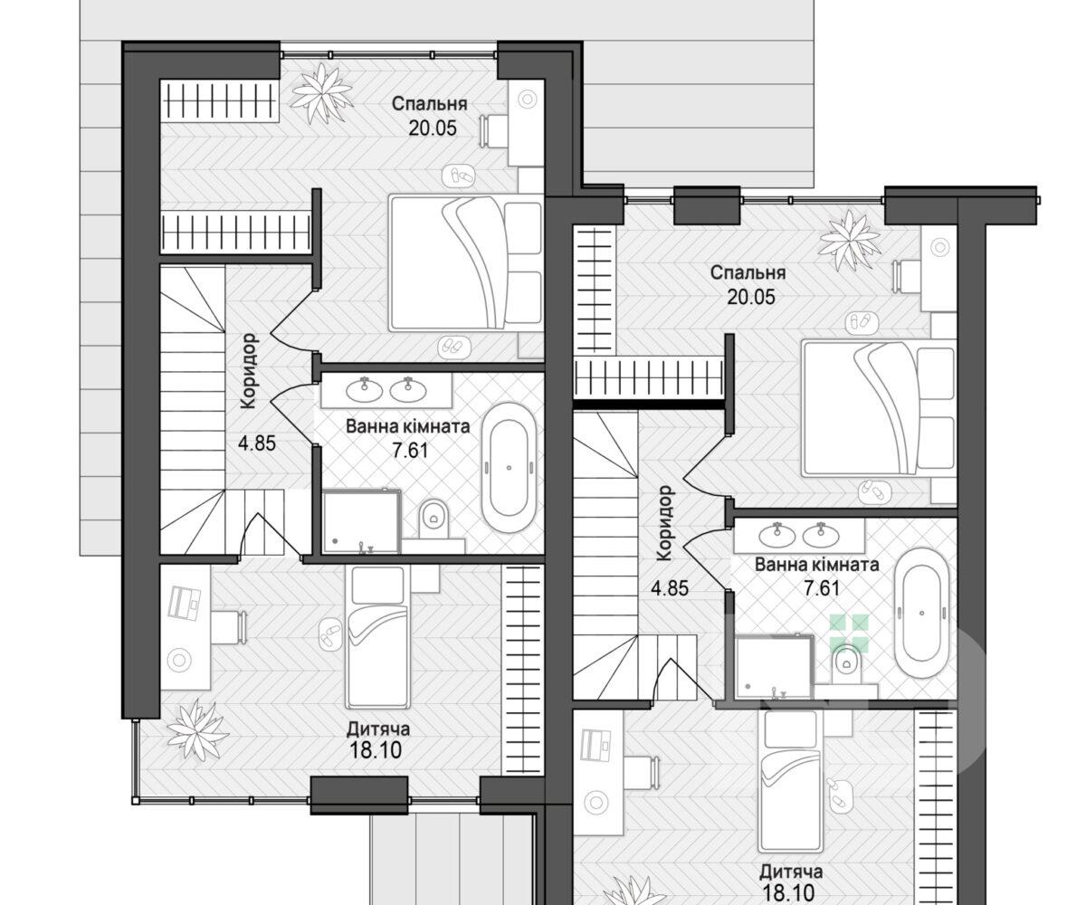
Планування продумане до деталей:
- 1 поверх: простора кухня-вітальня 34 м² із виходом на терасу 13 м², гостьова кімната і санвузол.
- 2 поверх: головна спальня 20 м², дитяча 18 м², простора ванна кімната, коридор.
Завдяки панорамним вікнам — багато світла та простору, а кутове розташування додає приватності та можливість облаштувати великий двір.
Комунікації:
- Центральна каналізація
- Центральне водопостачання
- Газове опалення
- Індивідуальний лічильник електроенергії
Вибір будинку у цьому комплексі — це життя серед природи без втрати міського ритму:
власне озеро, дитячі майданчики, велоінфраструктура, пішохідна концепція “15-хвилинного міста”.
Ідеальний варіант для тих, хто цінує якість, простір і гармонію.




































































