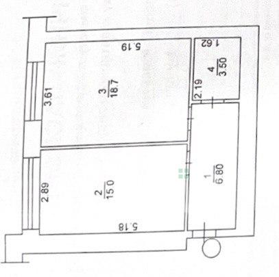
Загальна площа: 44,46 м2
Житлова площа: 18,59 м2
Площа кухні: 15,10 м2
Поверх/поверховість: 7/10
Пропонується до продажу простора однокімнатна квартира в новому сучасному житловому комплексі «Континент Рей», що знаходиться у місті Буча — одному з перспективних передмість Києва. Загальна площа квартири складає 45 квадратних метрів. Вона розташована на зручному 7 поверсі десятиповерхового будинку, що забезпечує гарний краєвид з вікна та тишу, недоступну для квартир на нижніх поверхах. Квартира має правильне планування, простору кімнату з великим вікном, кухню, передпокій, суміжний санвузол. Вона знаходиться у стані після будівельників, але вже виконано всі базові підготовчі роботи: зроблено стяжку підлоги, чистову штукатурку стін. Це ідеальний варіант для тих, хто хоче реалізувати власний дизайн і облаштувати простір за власними вподобаннями.
Житловий комплекс «Континент Рей» має закриту територію з гарно облаштованим внутрішнім двором, де є зелені зони для відпочинку, сучасне дитяче майданчик та зручні пішохідні доріжки.
Забудовник приділив велику увагу якості будівництва — будинок зведений з енергоефективних матеріалів, що забезпечують хорошу тепло- та шумоізоляцію.
Локація є однією з найкращих у Бучі. У пішій доступності знаходиться : школи ,зупинки громадського транспорту, супермаркети, аптеки, дитячі садки, кавʼярні та спортзали. Звідси зручно добиратися як у центр міста, так і до Києва.
Ця квартира — чудовий варіант як для особистого комфортного проживання, так і для інвестування з метою подальшої здачі в оренду або перепродажу.




























































