Загальна площа: 118 кв.м.;
Житлова площа: 50.55 кв.м.;
Площа кухні: 28.74 кв.м.;
Площа ділянки: 2,4 сотки.
Дуплекс у живописній частині Ірпеня, який поєднує у собі спокій заміського життя та комфортні умови з усією необхідною інфраструктурою!
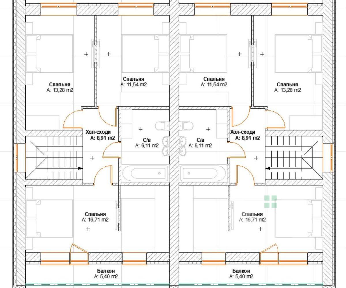
Дуплекс має достатньо велику площу у 118м2 та велику ділянку. На першому поверсі розміщено: велику кухню-вітальню, окрему спальню кімнату, санвузол, хол, тамбур та невеличку кладову для зберігання речей. На другому поверсі є :три спальні кімнати, санвузол та балкон. Всі кімнати просторі та мають правильну форму.До будинку вже заведені центральні комунікації, опалення газове. Дуплекс має власну ділянку на 2.4 сотки та окремі паркомісця на 2-3 автівки.
Інфраструктура місцевості дає змогу не виїжджати далеко від дому для проведення вільного часу та покупок. Поруч багато супермаркетів, парк “МАМА”, кав’ярні, дитячі майданчики, садочки, амбулаторія та навіть невеликий ринок. І це тільки маленький список всього , що буде вас оточувати. Транспортна розв’язка : виїзд до метро по ново-Ірпінській трасі, неподалік є зупинки міського маршрутного таксі №7 по місту та №379, яка довезе Вас до м. Академмістечко.




























































