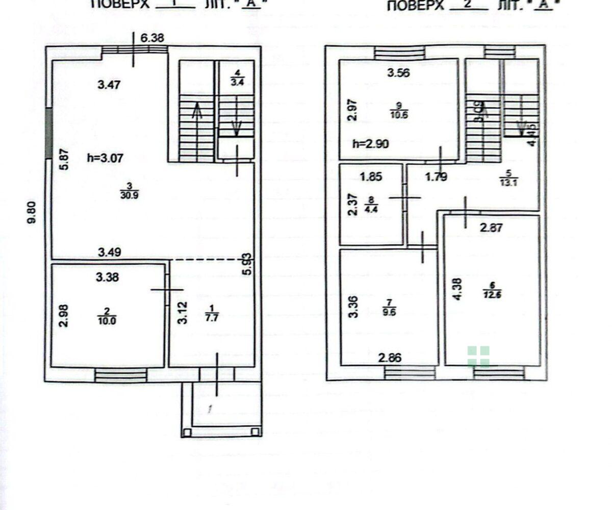
Загальна площа: 102.6 м2
Житлова площа: 43 м2
Площа кухні: 30.8 м2
Площа ділянки: 1.5 сотки
У продажу двоповерховий таунхаус з ремонтом в чудовій локації Бучі.
Зведений із газоблоку, утеплений пінополістиролом 100 мм, фасад комбінований – штукатурка + облицювальна цегла.
Таунхаус загальною площею 102.6 м.кв., 4 спальні, кухня вітальня з виходом на задній двір, 2 санвузли – гостьовий з зоною під пральну машинку та 2ий з просторою ванною. На другий поверх ведуть бетонні сходи викладені плиткою. Можна додатково зробити вихід на горище та облаштувати для зберігання речей.
Зроблено ремонт у світлих тонах, на кухні встановлена вбудована кухня з технікою.
По всьому першому поверху розведена тепла підлога, у спальнях другого поверху радіатори, встановлено газовий двоконтурний котел.
Комунікації газ, електрика 3 фази, 7 кВт, водовідведення – об’ємний септик, вхідна вода – свердловина.
Встановлено хвіртку та ворота. Місце паркування автомобіля та відмостка вимощені плиткою. Дуже велика прибудинкова територія, що дозволяє ставити ще декілька авто перед будинком.
Відмінне розташування – знаходиться на вулиці Києво-Мироцькій навколо приємний приватний сектор, сусіди постійно мешкають. Неподалік вся необхідна інфраструктура, поряд зупинка маршрутного транспорту. Зручний виїзд до Варшавської траси.
Підходить під всі програми.





































































